

在2020年来临之际,《ELLEDECO家具廊》迎来了升级版的DECOSPACE,升级后的栏目用于分享国内最新的设计案例,旨在挖掘优质的新锐设计师,为设计师搭建一个展现自我才华的平台,今天让我们一起去看看,首批登陆升级版DECOSPACE的精彩设计吧。(PS:投稿方式详见文末哦)

即日起DECOSpace栏目全新改版升级,下一个出现在这里的,也许就是你的作品!今天让我们先来看看下面三个项目,没准会对你有所启发。


张冬月
独立设计师张冬月,毕业于空间环境设计专业,于她而言,设计不只是空间结构上的改造,更是人们生活方式的体现,在她眼里,家应该兼备实用性和颜值,守得住一个人内心的繁华,容得下三五好友的喧闹,简单美好,予人温暖。

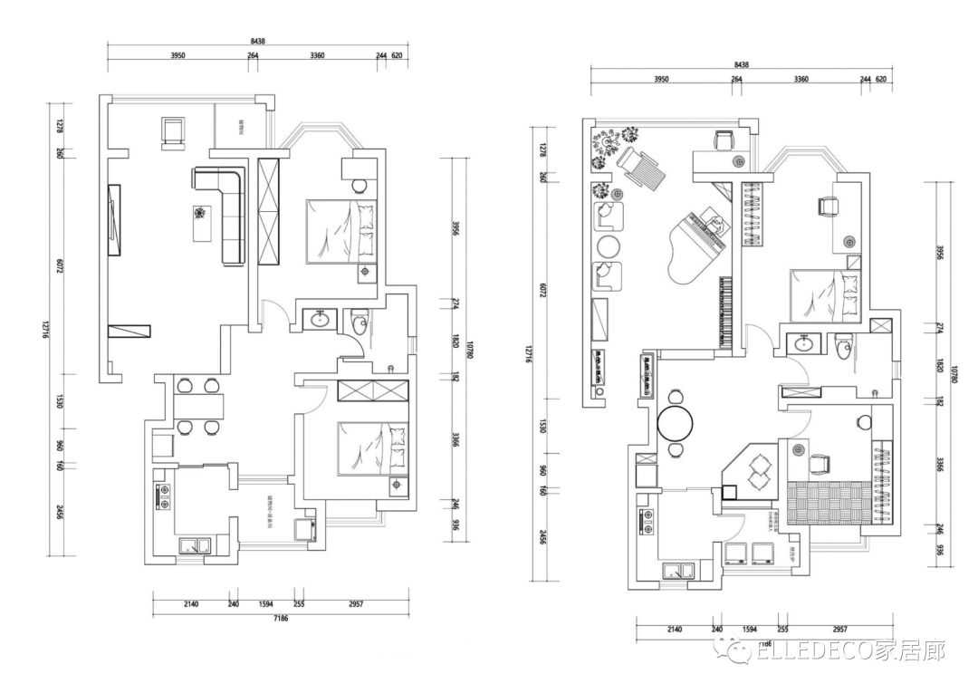
左图为改造前的户型图,右图为改造后的户型图
这个项目所涉及到的房子是砖混结构,每一面墙都很厚,物业连一面墙也不允许动……虽然实际面积只有80平米,但即使在不能动墙的基础上,还要满足业主的许多要求。

改造前的卧室


改造后的卧室

改造前的小卧室,飘窗本被业主用来堆放杂物


改造后的小卧室。设计师把飘窗清出来后,采光舒服了很多。

改造后,设计师将餐厅的墙拉长,既扩大了餐厅面积,又制造了一个玄关空间。去掉客厅原本的功能性,变成可以做喜欢的事情的空间,放一架钢琴,一个书法桌两人都有了可以独立使用的卧室及工作区域,把原本餐厅与阳台之间的窗户缩小成拱形窗,既留出窗景,又挡住杂物。

站在钢琴前看出去的视角,弧形门洞倒映在三角钢琴上的景象是意外之喜。将餐厅的墙拉长规划出一个玄关空间,放置了可以坐着换鞋的“鞋衣架”和储物的鞋柜。

透过拱门从餐厅望向客厅的视角,墙上的挂画多选择了业主喜欢的素描元素。因为会请小提琴老师定期过来上课,所以我们在客厅放置了两把不同的椅子,一把留给老师,一把高一点的椅子留着主人拉琴时坐。

“对我来说,生活的每一分每一秒都应该认真用心地去对待,怎么能在生活里最重要的事情上将就,在未经精心布置的房间里粗糙度日?在帝都,买房对我们年轻人来讲真的遥不可及,但在有能力的范围内,我们让自己住的舒服、开心,何乐而不为呢?更何况,一件好的家居设计,真可以陪我们很久很久。”——张冬月


SòStudio
在上周末的GrandOpeningParty上,CanalSt.堅尼街以#碰为主题,正式揭晓堅尼街的全新店面!

新的空间由知名建筑设计事务所SòStudio全力打造,设计师们结合了CanalSt.堅尼街固有的经典元素,再由别具城市魅力的精致手法完美呈现CanalSt.堅尼街2.0。

CanalSt.堅尼街由主理人Yiling于2018年成立于纽约。顾名思义,它正是代表的一种东西方文化冲撞、融合而成的独特风格。

随着2019年CanalSt.堅尼街正式入驻上海静安区巨鹿路,CanalSt.团队就在努力成为一家能将纽约CanalSt.纯正生活方式带入中国消费者观念中的设计师品牌集成店。不到一年的时间,CanalSt.堅尼街2.0旗舰店于上海市徐汇区新乐路盛大开业。


店铺地址:徐汇区新乐路163号
营业时间:12:00~21:00


孙文设计事务所
在一个老建筑里做出空间的变化,让建筑在环境中自然生长是孙文设计事务所一贯坚持的设计理念。

改造前


改造后
稻里食坊原为杭州莫干溪谷当地的一个旧民居,具备莫干山所有自然元素:云、竹、泉。


设计从最初的想打造的就是让食客在用餐的时候有一个放松舒适的氛围,通过空间环境的设计凸显餐厅有机食材的特色。食材会变,时空会变,只要心意不变,就能找到最初的味道。
中国人素来具有草木精神,宁可食无肉,不可居无竹,竹子作为餐厅的主要元素,打造出一个健康素食与有机环境相融合的空间。稻里食坊所有食材都由餐厅亲自种植,餐厅周边的土地就是“一手食材”的获取地,提供最新鲜的有机食材。
当从大自然中获得的野趣和闲情逸致离我们越来越远,被工作生活推着快速前进的都市人都迫切希望能找到一个更纯粹的地方,放下牵挂,忘却烦恼。于水墨江南处,筑起一座心的禅居,以食养性。
你是否想展示自己的作品?你是否想增加自己的曝光度?你是否想翻开你设计生涯的全新篇章?别犹豫了!留言后台“投稿”,获取投稿方式,并按要求发送给我们你的项目,没准下一期这就里就是你的主场!
监制|李颖婷
新媒体编辑|林晓羽助理|马元哲
本文为《ELLEDECORATION家居廊》版权所有,
欢迎转发朋友圈;
如需转载,请联系后台告知转载事宜,侵权必究。